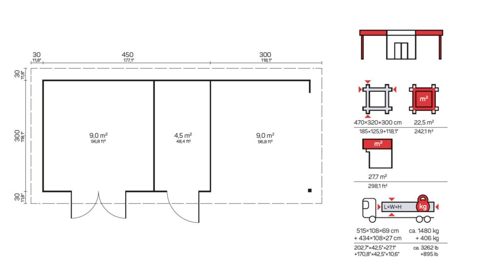
Modell: Oriental 4+SD300
Minden 28 és 40 mm-es faház, játszóház, előtető, nyaraló és garázs tartalmaz egy szabványos készletet: ajtók, ablakok és rögzítések, amelyek egyszerűvé és gyorssá teszik a házak összeszerelését.
A Marida 28 és 40 mm vastag faházak készlete a következőket tartalmazza:
A faanyag, amelyből a házak készülnek, 100%-ban kiváló minőségű északi lucfenyő
A nyílászárók extra száraz (8-12%) laminált fából készülnek
A nyílászárók üvegezettek, két irányba nyílóak és minden berendezést tartalmaznak
Az ajtók üvegezettek, két irányba nyílnak és minden felszerelést tartalmaznak
A mennyezet és a padló 18 mm vastag profillapokból készül
Az alapgerendák autoklávval impregnált fából készülnek
Viharrácsok a szélfújás elleni védelemhez
Rögzítési tartozékok: szögek és csavarok
Beépítési rajzok és tervek


















