Modell: Oriental 5+SD300
Minden 28 és 40 mm-es faház, játszóház, előtető, nyaraló és garázs tartalmaz egy szabványos készletet: ajtók, ablakok és rögzítések, amelyek egyszerűvé és gyorssá teszik a házak összeszerelését.
A Marida 28 és 40 mm vastag faházak készlete a következőket tartalmazza:
A faanyag, amelyből a házak készülnek, 100%-ban kiváló minőségű északi lucfenyő
A nyílászárók extra száraz (8-12%) laminált fából készülnek
A nyílászárók üvegezettek, két irányba nyílóak és minden berendezést tartalmaznak
Az ajtók üvegezettek, két irányba nyílnak és minden felszerelést tartalmaznak
A mennyezet és a padló 18 mm vastag profillapokból készül
Az alapgerendák autoklávval impregnált fából készülnek
Viharrácsok a szélfújás elleni védelemhez
Rögzítési tartozékok: szögek és csavarok
Beépítési rajzok és tervek
További információk a modellről
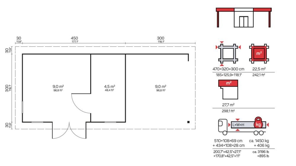
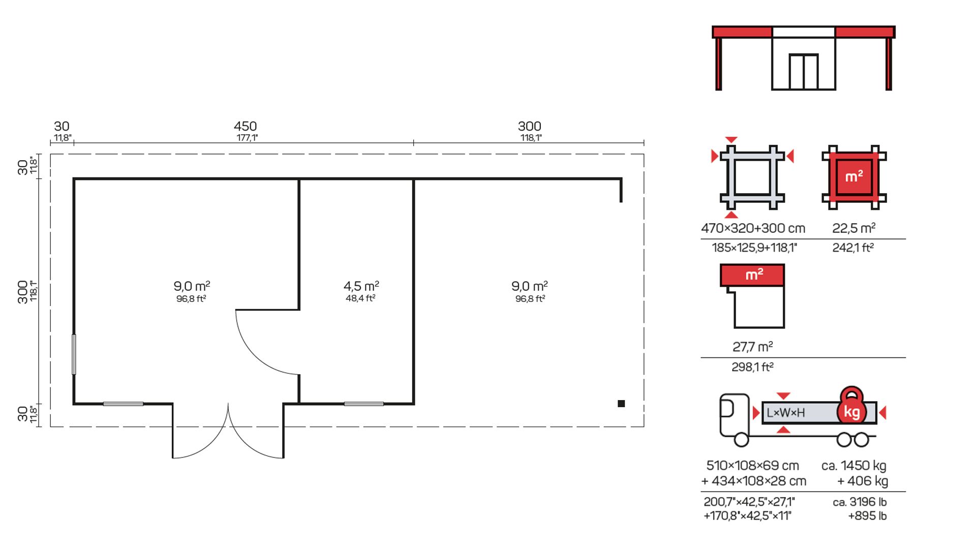
Külső méretek (szélesség x hossz): 470 x 320 cm + 300 cm
Fal méretei (szélesség x hossz): 450 x 300 cm
Falvastagság: 40 mm
Oldalfal magassága: 211/222 cm
Gerinc magassága: 234 cm
Tetőfelület: 27,70 m2
Tetődeszkák: 18 mm
Elöl túlnyúlás: 30 cm
A tető dőlésszöge: 2°
Padlódeszkák: 18 mm
Impregnált alapfa: 45 x 70 mm
Alapterülete: 12,80 m2
Dupla üvegezésű ablak: 3 db. 515 x 1890 mm
Dupla üvegezésű ajtó: 840 x 1955 mm / 1425 x 1955 mm
Csomag súlya: 1700 kg
Csomag mérete: 510 x 108 x 69 cm / 434 x 108 x 27 cm
















