Modell: Göteborg C
Minden 70 mm-es faház, játszóház, kocsibeálló, nyaraló és garázs szabványos készletet tartalmaz: ajtók, ablakok és rögzítések, amelyek egyszerűvé és gyorssá teszik a házak összeszerelését.
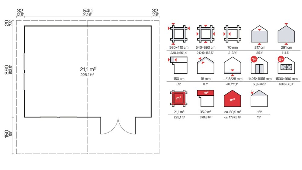
A Marida 70 mm vastag faház készlete a következőket tartalmazza:
A faanyag, amelyből a házak készülnek, 100%-ban kiváló minőségű északi lucfenyő
A nyílászárók extra száraz (8-12%) laminált fából készülnek
A nyílászárók üvegezettek, két irányba nyílóak és minden berendezést tartalmaznak
Az ajtók üvegezettek, két irányba nyílnak és minden felszerelést tartalmaznak
A mennyezet és a padló 18 mm / 28 mm vastag profillapokból készül
Az alapgerendák autoklávval impregnált fából készülnek
Viharrácsok a szélfújás elleni védelemhez
Rögzítési tartozékok: szögek és csavarok
Beépítési rajzok és tervek












