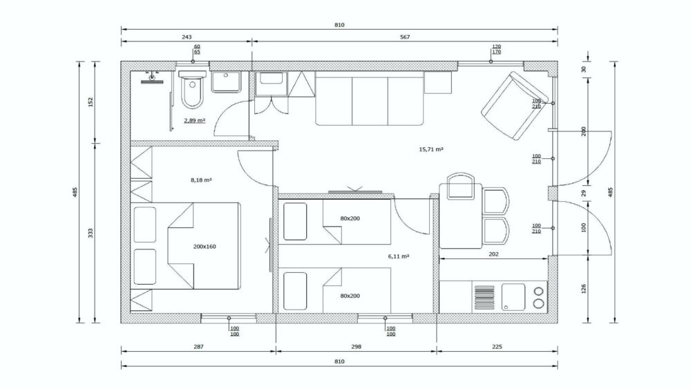
Optimális helykihasználás: A 39,28 m² alapterületű Leona 40 Comfort elegánsan elrendezett szobákat kínál, köztük két hálószobát, fürdőszobát, nappalit, konyhát és étkezőt, terasszal kiegészítve.
Lakberendezés: Igényeitől és stílusától függően válasszon bútorokkal vagy bútor nélkül berendezett ház között.
Modern építészet: Modern dizájn, amely ötvözi a funkcionalitást és az esztétikát, kellemes életteret teremtve.
Kiváló építési minőség: A minőségi anyagok biztosítják a tartósságot és az energiahatékonyságot, így a Leona 40 Comfort tökéletes minden éghajlatra.
Alkalmazhatóság: Igény szerint alakítható – a helyiségek elrendezésének megváltoztatása vagy további elemek beépítése.
A Leona 40 Comfort elég rugalmas ahhoz, hogy megfeleljen a különböző céloknak, legyen szó állandó szállásról, nyaralóról vagy ideiglenes tartózkodásról. Kompaktsága lehetővé teszi a könnyű telepítést még kisebb épülettel_NBSP__telkekre is.
Mobilház Leona 40 Comfort
Leona 40 Comfort – kompakt és hatékony mobilház!
Bemutatjuk Önnek a Leona 40 Comfort-ot, egy modern mobilházat, amely optimális helykihasználást biztosít elegáns és funkcionális csomagban. Ez a ház 8,10 x 4,85 méteres méreteivel ideális választás azoknak, akik minőségi és esztétikus teret szeretnének, legyen szó nyaralónak, kiegészítő lakóegységnek vagy nyaralónak.
További információk
| Helyiségek száma | 3 |
|---|---|
| Falvastagság | 170mm |
| Alapterület (m²) | 40 |
| Tető típusa | Félnyeregtető |















