Modell: Salamanca
Minden 70 mm-es faház, játszóház, kocsibeálló, nyaraló és garázs szabványos készletet tartalmaz: ajtók, ablakok és rögzítések, amelyek egyszerűvé és gyorssá teszik a házak összeszerelését.
A Marida 70 mm vastag faház készlete a következőket tartalmazza:
A faanyag, amelyből a házak készülnek, 100%-ban kiváló minőségű északi lucfenyő
A nyílászárók extra száraz (8-12%) laminált fából készülnek
A nyílászárók üvegezettek, két irányba nyílóak és minden berendezést tartalmaznak
Az ajtók üvegezettek, két irányba nyílnak és minden felszerelést tartalmaznak
A mennyezet és a padló 18 mm / 28 mm vastag profillapokból készül
Az alapgerendák autoklávval impregnált fából készülnek
Viharrácsok a szélfújás elleni védelemhez
Rögzítési tartozékok: szögek és csavarok
Beépítési rajzok és tervek
További információk a modellről
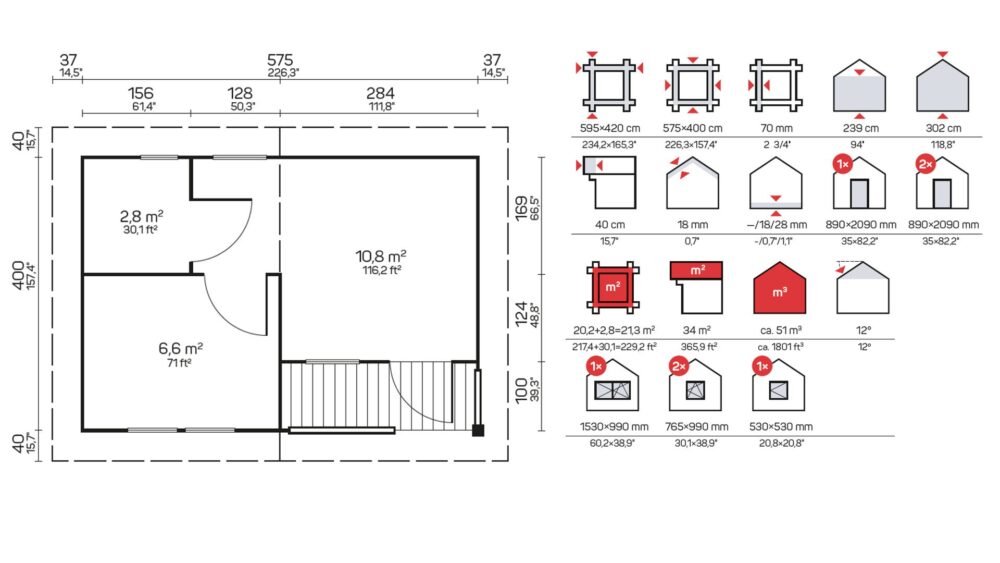
Külső méretek (szélesség x hossz): 595 x 420 cm
Fal méretei (szélesség x hossz): 575 x 400 cm
Falvastagság: 70 mm
Oldalfal magassága: 239 cm
Gerinc magassága: 302 cm
Tetőfelület: 34,00 m2
Tetődeszkák: 18 mm
Elöl túlnyúlás: 40 cm
A tető dőlésszöge: 12°
Padlódeszkák: 28 mm
Impregnált alapfa: 60 x 70 mm
Alapterülete: 21,30 m2
Dupla üvegezésű ablak: 1x 530×530 mm / 2x 765×990 mm / 1x 1530×990 mm
Fa ajtók: 3x 890×2090 mm
Csomag súlya: 3250 kg
Csomag mérete: 600 x 120 x 46 cm / 600 x 120 x 80 cm














