Főbb jellemzők:
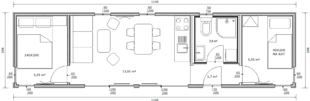
Optimális helykihasználás: A 33 m²-es Leona 33 igényesen elrendezett szobákat kínál, köztük két hálószobát, fürdőszobát, nappalit, konyhát és étkezőt, terasszal kiegészítve.
Lakberendezés: Igényeitől és stílusától függően válasszon bútorokkal vagy bútor nélkül berendezett ház között.
Modern építészet: Modern dizájn, amely ötvözi a funkcionalitást és az esztétikát, kellemes életteret teremtve.
Kiváló minőségű konstrukció: A minőségi anyagok biztosítják a tartósságot és az energiahatékonyságot, így a Leona 33 tökéletes minden éghajlatra.
Alkalmazhatóság: Igény szerint alakítható – a helyiségek elrendezésének megváltoztatása vagy további elemek beépítése.
A Leona 33 elég rugalmas ahhoz, hogy megfeleljen a különböző céloknak, legyen szó állandó szállásról, nyaralóról vagy ideiglenes tartózkodásról. Kompaktsága lehetővé teszi a könnyű telepítést még kisebb építési telkeken is.





































