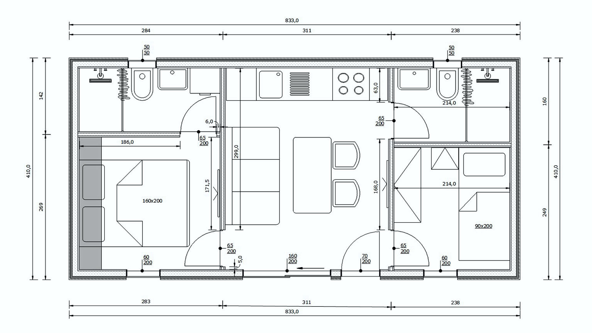
Optimális helykihasználás: A 34,15 m²-es Leona 35 igényesen elrendezett szobákat kínál, köztük két hálószobát, két fürdőszobát, nappalit, konyhát és étkezőt, terasszal kiegészítve.
Lakberendezés: Igényeitől és stílusától függően válasszon bútorokkal vagy bútor nélkül berendezett ház között.
Modern építészet: Modern dizájn, amely ötvözi a funkcionalitást és az esztétikát, kellemes életteret teremtve.
Kiváló minőségű konstrukció: A minőségi anyagok biztosítják a tartósságot és az energiahatékonyságot, így a Leona 35 tökéletes minden éghajlatra.
Alkalmazhatóság: Igény szerint alakítható – a helyiségek elrendezésének megváltoztatása vagy további elemek beépítése.
A Leona 35 elég rugalmas ahhoz, hogy megfeleljen a különböző céloknak, legyen szó állandó szállásról, nyaralóról vagy ideiglenes tartózkodásról. Kompaktsága lehetővé teszi a könnyű telepítést még kisebb épülettel_NBSP__telkekre is.
Mobilház Leona 35
Leona 35 (8,3 x 4,1) – Kompakt és hatékony mobilház!
Bemutatjuk Önnek a Leona 35-öt, egy modern mobilházat, amely optimális helykihasználást biztosít elegáns és funkcionális csomagban. 8,33 x 4,10 méteres méreteivel ez a ház ideális választás azoknak, akik minőségi és esztétikus teret szeretnének, legyen szó nyaralóról, kiegészítő lakóegységről vagy nyaralóról.
További információk
| Helyiségek száma | 4 |
|---|---|
| Falvastagság | 170mm |
| Alapterület (m²) | 32 |
| Tető típusa | Félnyeregtető |





































